IMG_3183.jpg

Segundamano Schibsted

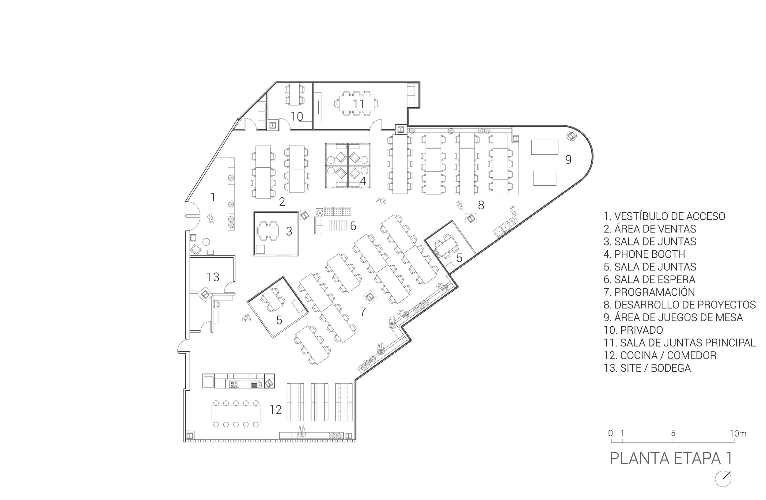
El proyecto ha consistido en transformar un espacio de más de 600m2 en el interior de un coorporativo en un lugar de trabajo acogedor y eficiente tomando como premisa de diseño los valores de Segunda Mano: Integridad, Compañerismo, Ambición, Responsabilidad y Excelencia.


El espacio con el que nos encontramos tenía dos caracteristicas importantes a tomar en cuenta, las ventanas perimetrales y una altura muy castigada en proporción con la amplitud del espacio a intervenir.
El proyecto se define a partir de dos elementos:
-El primero es una estructura de acero. Un librero, que hace la función de límite, ubicado en el perímetro de la oficina. Dicho elemento da identidad al espacio, ya que es el equipo de Segunda Mano quien lo va interviniendo y se apropia así de él.

El segundo elemento son los ¨pedestales¨ en los cuales se recibe al visitante. Éstos dan escala al espacio y su ubicación permite ir descubriendo las distintas áreas de la oficina. Generan recorridos y referencias tanto al visitante como al equipo.

Segundamano, Schibsted México

oficinas para empresa internacional dedicada al negocio de los clasificados.
Torre esmeralda, Lomas de CHapultepec, CDMX, MÉXICO
2014, 628 m² y ampliación de 2016: 521 m² 

FOTOGRAFÍA: BARTEK LEWICKI, KAREN PÉREZ C.

Segundamano, Schibsted MExico

INTERNATIONAL CLASSIFIEDS MEDIA GROUP’S OFFICE
LOMAS DE CHAPULTEPEC, MEXICO CITY
2014, 2060 FT² AND 2016´S EXTENSION: 1709 FT² 

PHOTOGRAPHY: BARTEK LEWICKI, KAREN PÉREZ C.

Segundamano, Schibsted México.

El proyecto consistió en transformar un espacio de más de 600m2 dentro de un corporativo tradicional en un lugar de trabajo  eficiente tomando como premisa de diseño los valores de Segunda Mano: Integridad, Compañerismo, Ambición, Responsabilidad y Excelencia.

El espacio tenía dos características importantes a tomar en cuenta, las ventanas perimetrales y una altura muy castigada en proporción con la amplitud de la superficie a intervenir.

El proyecto se define a partir de dos elementos:

El primero es una estructura de acero;  un librero ubicado en el perímetro de la oficina, que por su ubicaciónfunciona como límite y por su uso  como filtro hacia el exterior. Dicho elemento da identidad al espacio, ya que es el equipo de Segunda Mano quien lo va interviniendo con objetos reciclados apropiándose así de él.

El segundo elemento son los privados en los cuales se recibe al visitante. Éstos dan escala al espacio y su ubicación permite ir descubriendo las distintas áreas de la oficina. Generan recorridos y referencias dentro de la oficina tanto al visitante como al equipo.

Segundamano, Schibsted Mexico.

The project was conceived to transform a 2000 ft² space into a co-working model office area.

The desire of open spaces, exploration and creativity became the catalyst for this project.  The space provides a variety of working environments for the members to choose from: enclosed meeting rooms, private offices, lounge-waiting rooms, co-working areas, kitchen-diner, and a gaming area. The space had two important characteristics to consider through our design process, the perimetric windows and the low ceilings’ height.
 

The project was defined by two principal elements:

The first one is a steel bookshelf-like structure which is placed in the entire perimeter of the floor, and gives identity to the offices because the users give shape to it by putting second-hand products all over the structure.  

The second element is what allows this space to have private offices in the middle of the whole floor without losing privacy nor comfort. These offices were designed as steel and crystal “containers”, which allow users create specific working trips through the office.   These cubes have two materials- OSB boards and steel structures. These two materials forms constrast in different ways with the raw concrete floor space.